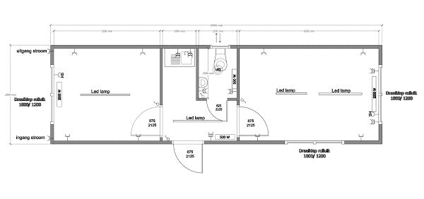
CABAÑA MODULAR ATENAS 6X3,0MT

1 DORMITORIO

1 BAÑO COMPLETO

ESPACIO LIVING - COMEDOR - COCINA

SUPERFICIE DE 18M2

 

CARACTERISTICAS DEL PROYECTO

Revestimiento interior osb y volcanita lisa

Revestimiento exterior siding fibrocemento 

Aislación de poliuretano proyectado en cielo

Aislación de lana de vidrio en muros

Piso pavimento vinílico tipo click

1 Ventanal corredero termopanel pvc blanco 1.80x2.00mt con chapa

2 Ventanas proyectantes termopanel pvc blanco 1.50x0.50mt

1 Ventana proyectante termopanel pvc blanco 1.20x0.50mt

1 Celosía simple pvc blanco 0.46x0.55mt

Tablero electrico 25 Amperes

Electricidad con cable EVA

3 Luminarias LED cálidas

1 Luminaria LED fría

2 Luminarias exteriores

1 Tecla triple

1 Tecla simple con enchufe

6 Enchufes dobles

Baño completo / lavamanos, wc, shower door 80x80mt

Kit lavaplatos

Cañerias ppr

Subscribe