Modular: Unidad construida por acero estructural de 100x50x2mm y 25x50x2mm, con pilares de 50x50x2mm y piso de madera terciada de 18mm. Las dimensiones son de 20 y 40 pies, sin embargo al ser fabricadas en la Maestranza, se tiene la ventaja de poder hacerlo a medida.
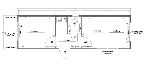
Tabiquería y entramado de madera de pino seco sin cepillar, en formato 2¨x1¨y 2¨x2¨Aislación térmica, Poliestireno expandido para muros y cielos de 30 mm de espesor.Revestimiento, se considera fibrocemento de 3,5 mm de espesorPiso, revestido con piso flotante de 7mm de espesor de alto tráfico.Sistema eléctrico; Según Normativa SEC. Alambre NYA, V-R-B de 2,5 mm para fuerza y de 1,5 mm para iluminación, embutidos en conduit de16mm Automático de 10 Amperes para iluminación y 16 Amperes para fuerza, Caja estanca exterior para empalme.Puntos eléctricos; 1 interruptor simple para los de 20 pies y doble para los de 40 pies. 2 y 4 enchufes respectivamente. Cuando la oficina considera Aire Acondicionado se agrega un enchufe simple y un automático de 16ASistema de Aire Acondicionado; Considera de 9.000 y 12.000 BTU respectivamente, en formato Split ventana y solo cuando el cliente lo requiere.Iluminación; Luminarias fluorescentes tipo canoa de 1×36 w. 2 en unidades de 20 pies y 4 en 40 pies.3 Ventanas comerciales de aluminio sin protecciones.Puerta de acceso, doble hoja de vidrio y manilla de seguridad.Pintura; Interior considera esmalte al agua en dos manos y Esmalte sintético en dos manos en el exterior, previo una mano de anticorrosivo. Colores exteriores, Gris o blanco.Sala de baño considera artefactos de línea Karson u otra símil. 1 Lavabo y 1 sanitario.Terminaciones; Molduras Finger de pino cepillado.































